Ласкаво просимо до нашого інноваційного складу-магазину, розташованого в мальовничій Закарпатській області, в селі Кайданово. Цей проект, реалізований компанією ПП “АРХІДРОМ”, є втіленням сучасного дизайну та функціональності, призначений для задоволення потреб сучасного ритейлу та складських операцій.
Особливу увагу ми приділили доступності для осіб з обмеженими можливостями, включивши тактильну плитку та заниження тротуарів для забезпечення безперешкодного доступу.
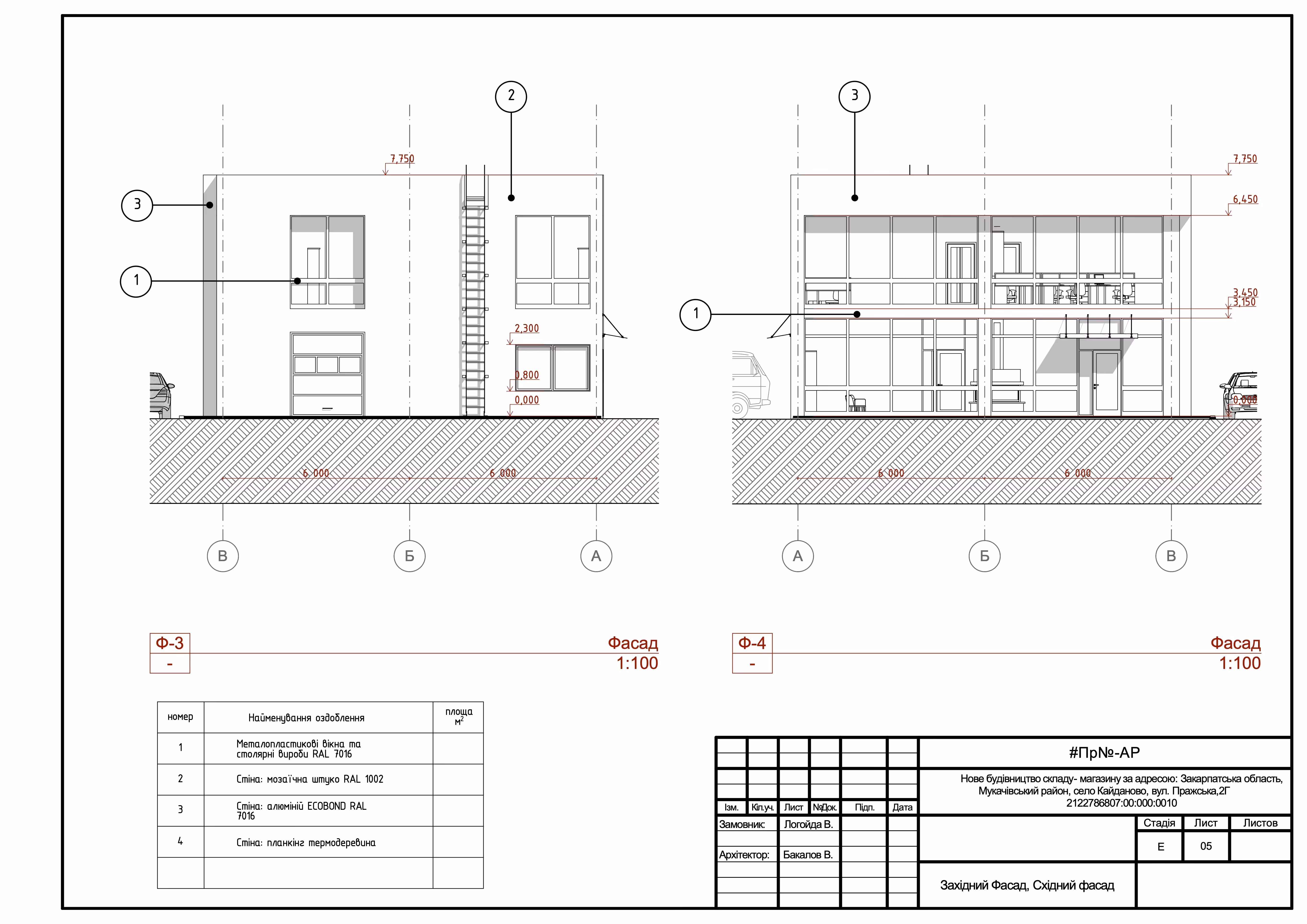
Кожен елемент цього проекту був ретельно продуманий, щоб забезпечити не тільки естетичний вигляд, але й максимальну функціональність та комфорт.
Завдяки сучасним архітектурним рішенням та використанню високоякісних матеріалів, наш склад-магазин у селі Кайданово став не тільки практичним і функціональним, але й естетично привабливим об’єктом. Приєднуйтесь до нас у цій захоплюючій подорожі інновацій та відкрийте для себе, як L&BUD перетворює звичайні простори у вишукані та функціональні архітектурні шедеври.

Так, ми виготовляємо планки будь-яких розмірів та кольорів за вашим запитом.
Вона підходить для дахів із кутом нахилу від 20°, але потребує міцної кроквяної системи через свою вагу.
Так, якщо без шумоізоляції. Рекомендуємо використовувати підкладку (мембрани, утеплювач).
Кам'яна вата: Паропроникна – дозволяє стінам "дихати", запобігає появі конденсату.
Вогнестійка – не горить, витримує температури понад 1000°C.
Краще поглинає шум – особливо важливо для квартир і приватних будинків.